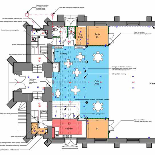
St Paul’s Church, Southville, Bristol – St Pauls PCC
A series of projects to upgrade the appearance of the church, improve the facilities and make it feel more welcoming to visitors, including
- improvements to the entrance doors and lobby
- improved accessibility
- modernisation of the cafe area




